<< Previous

This asset is part of a series

Next >>

Used in pathways:

My Default Pathway by Joel Nazar-Zadeh, Student

My Default Pathway by Joel Nazar-Zadeh, Student

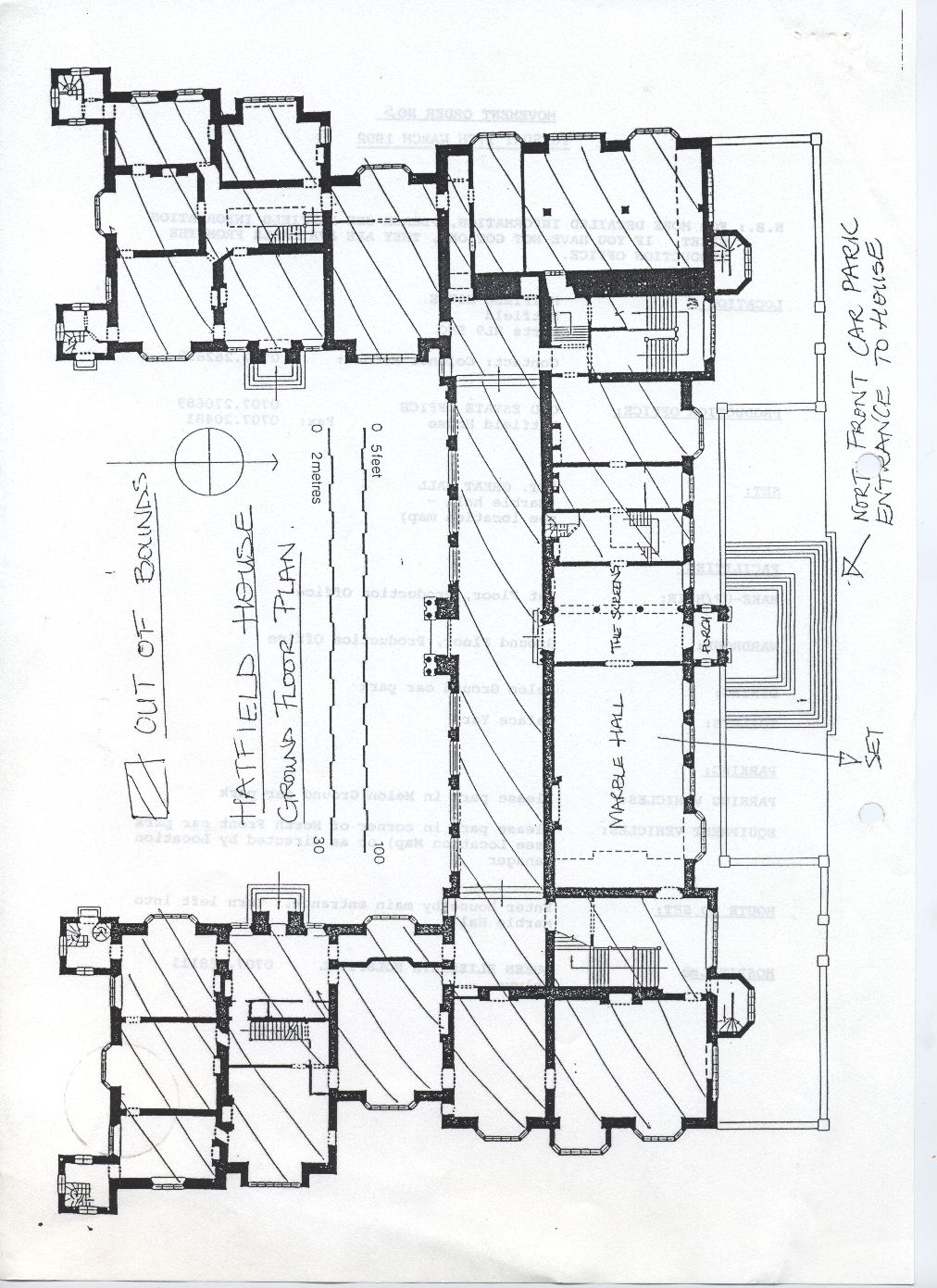
Description Printed map of Ground Floor of Hatfield House with handwritten annotations. Photocopied A4 sheet
Asset ID SPA0002317
Date 14/03/1992
Tags