<< Previous

This asset is part of a series

Next >>
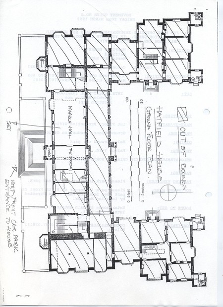
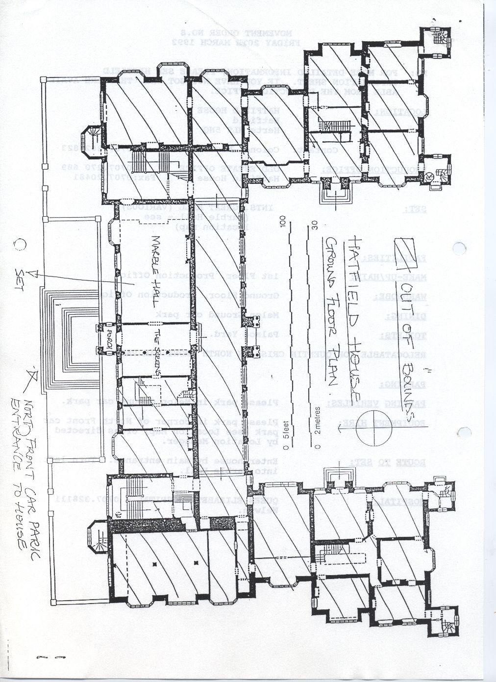
Description Reverse of Movement Order No. 8. Printed map of Hatfield House with handwritten annotations. Photocopied A4 sheet
Asset ID SPA0002329
Date 20/03/1992
Tags